Nouveau À saisir
Nouveau À saisir

À Toulon découvrez Votre T2 en Construction

227 000 €

Explorez une nouvelle ère de confort et de style avec ce T2 contemporain en construction, idéalement situé à proximité du centre-ville vibrant de Toulon.


Perché en étage, accessible par un ascenseur, cet appartement redéfinit les normes du logement moderne.

 

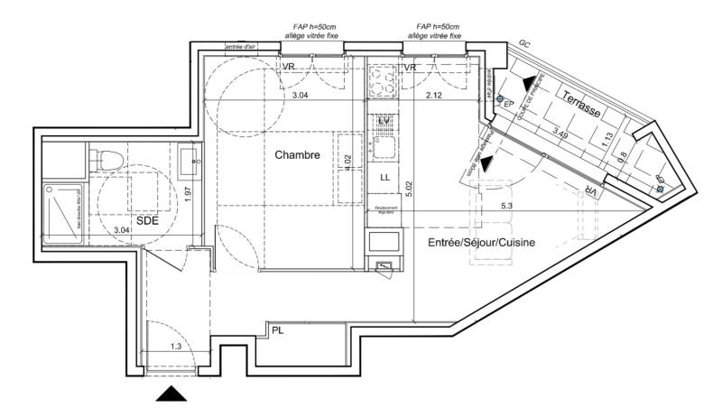
D'une superficie totale de 40 m², chaque mètre carré est pensé pour fusionner l'efficacité et le design, créant un espace de vie où chaque détail compte.

 

Le séjour cuisine de 23 m² devient le cœur de votre quotidien, offrant un espace polyvalent où la convivialité rencontre la fonctionnalité.

 

La chambre de 12 m² devient votre havre de paix, conçue pour répondre à vos besoins avec élégance. Un espace généreux qui ajoute une touche de luxe à votre vie quotidienne.

 

La salle d’eau équipée évoque une esthétique moderne, où chaque accessoire est sélectionné pour créer une atmosphère de bien-être.

 

La terrasse devient votre échappatoire vers l'extérieur, un espace où vous pouvez vous détendre et profiter de l'air frais. L'entrée, agrémentée d'un placard, est un avant-goût du raffinement qui vous attend à l'intérieur.

 

La cuisine américaine en longueur offre une approche moderne et fonctionnelle de la préparation des repas, créant une atmosphère fluide et ouverte qui invite à la créativité culinaire.

 

Cet appartement est bien plus qu'un simple espace de vie. C'est une toile blanche pour créer vos moments mémorables et votre propre style de vie.

La place de parking dédiée ajoute une commodité précieuse dans le rythme effréné de la vie urbaine.

 

Les frais de notaire de 2 à 2,5 %  facilitent l'accès à cette opportunité exceptionnelle.

Investir dans le neuf, c'est investir dans l'avenir, avec la possibilité de personnaliser votre espace selon vos goûts.

 

Votre avenir commence ici, dans votre T2 en construction.

Surface habitable : 40m² Nombre chambres : 1 Nombre salles de bain/d'eau : 1 Étage : 1 Ascenseur : Oui Extérieur : Oui
Contactez-nous
Les champs indiqués par un astérisque (*) sont obligatoires