À saisir
À saisir

Appartement à Toulon 2 pièces neuf en livraison

257 000 €

Situé à quelques pas du dynamique centre-ville, cet appartement T2 en construction vous offre une opportunité unique de fusionner style de vie contemporain et commodités urbaines.


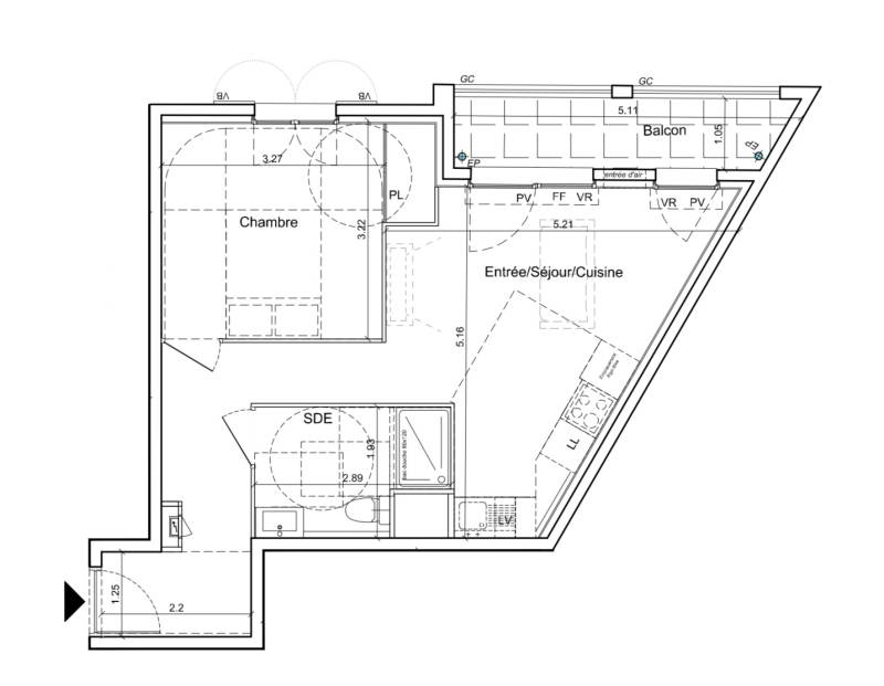
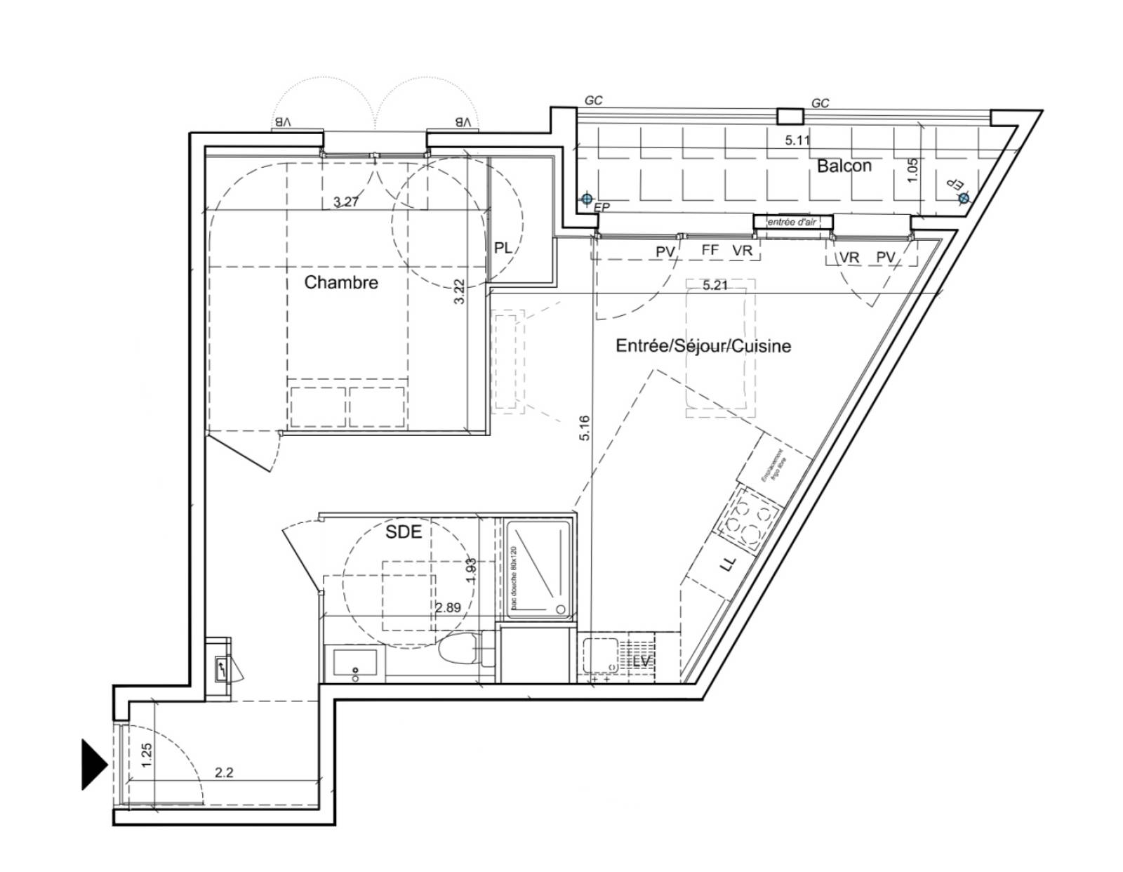
Niché au 3ème étage avec ascenseur, cette appartement architectural d'une superficie totale de 41m² vous promet un cadre de vie exceptionnel.

 

Le séjour de vos rêves prend forme dans un séjour cuisine de 25 m², espace convivial et lumineux où la vie quotidienne se transforme en moments inoubliables.

 

La chambre de 11 m² avec son placard intégré offre un sanctuaire de détente, créant un équilibre parfait entre intimité et fonctionnalité.

 

La modernité et le confort se rencontrent dans la salle d’eau équipée, un havre de bien-être où chaque détail est pensé pour répondre à vos besoins.

 

Pratique et esthétique, un placard à l’entrée vous accueille dès que vous franchissez le seuil, ajoutant une touche d'organisation à votre quotidien.

 

Le point culminant de cet appartement est la terrasse exposée Est, vous invitant à profiter des levers de soleil spectaculaires et des soirées paisibles en plein air.

 

Une invitation constante à savourer la douceur du climat méditerranéen.

La valeur ajoutée de cette propriété se reflète également dans la commodité d'une place de parking, une précieuse facilité pour les résidents actifs.
La construction neuve offre la flexibilité d'ajuster votre espace selon vos goûts personnels, créant un chez-vous à votre image.


Les frais de notaire de 2 à 2,5 % facilitent votre parcours vers la propriété, rendant cette opportunité encore plus accessible.

 

Ne laissez pas passer la chance de devenir propriétaire de ce T2 exceptionnel, un équilibre parfait entre design moderne et emplacement idéal à Toulon.

 

Contactez-nous dès aujourd'hui pour explorer cette résidence en construction et laissez-vous séduire par le futur dont vous avez toujours rêvé.

Surface habitable : 41m² Nombre chambres : 1 Nombre salles de bain/d'eau : 1 Étage : 3 Ascenseur : Oui Extérieur : Oui
Contactez-nous
Les champs indiqués par un astérisque (*) sont obligatoires