Exclusivité
Exclusivité

Appartement Neuf de 2 Pièces avec Terrasse Privée Situé à Carqueiranne

330 000 €

Carqueiranne, une ville où la beauté de la Méditerranée rencontre le charme provençal. Plongeons dans une opportunité exceptionnelle qui incarne le raffinement de Carqueiranne.

Un appartement neuf de 2 pièces qui allie confort et style dans un cadre idyllique.

 

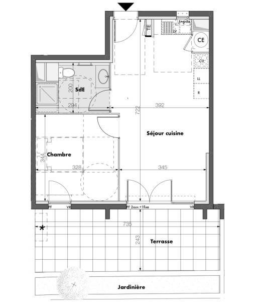
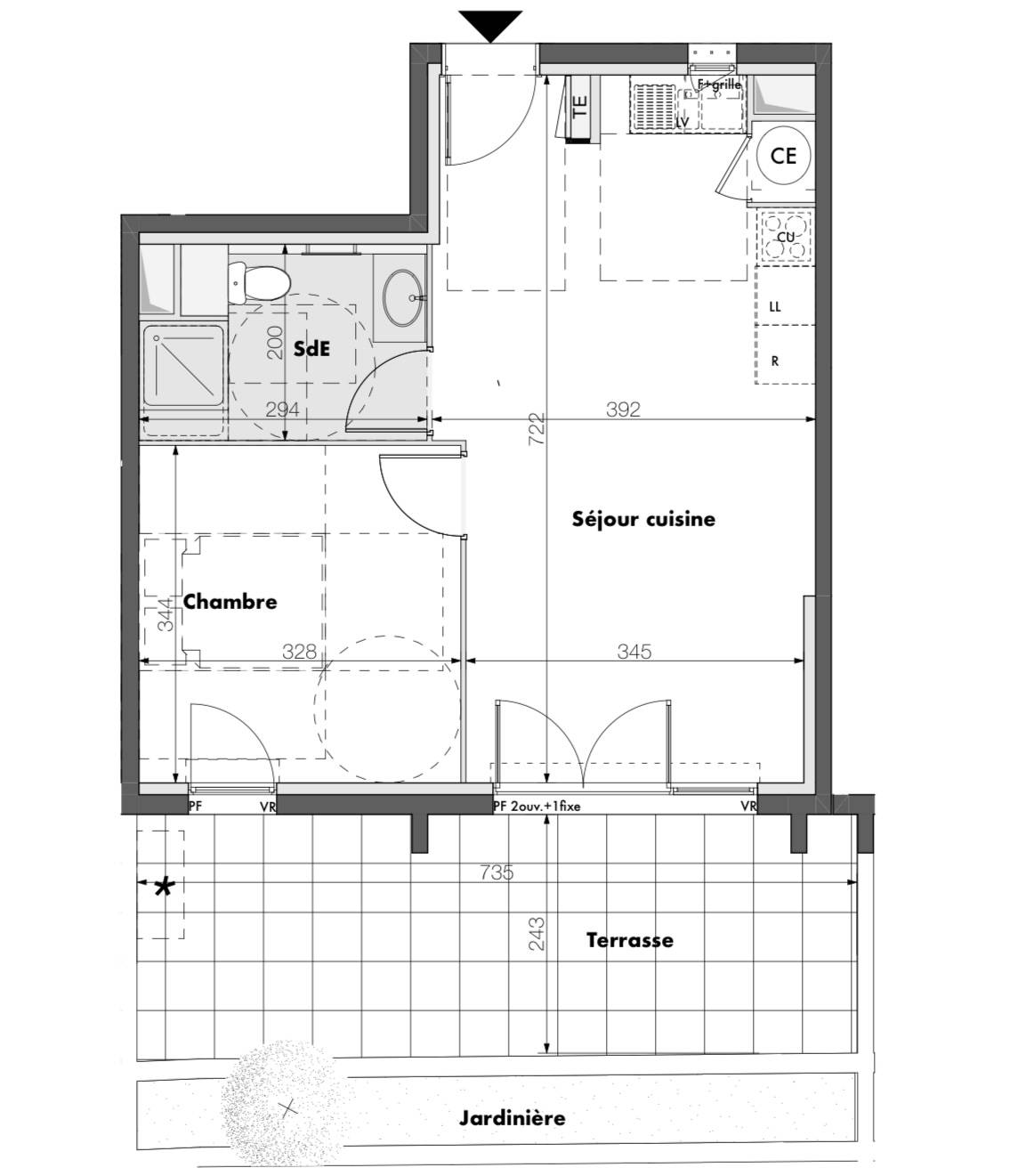
Situé dans la prestigieux ville de Carqueiranne, cet appartement de 43 m2 offre une expérience de vie unique. Le séjour-cuisine de 26 m2 devient le cœur de cet espace, tandis que la terrasse de 18 m2, agrémentée d'une jardinière, offre une extension en plein air.

 

La chambre de 11 m2, donnant sur la terrasse, crée un havre de paix privé.

 

Les caractéristiques de cet appartement ne se limitent pas à son esthétique. En tant que professionnel de l'immobilier, je souligne qu'il se trouve au rez-de-chaussée, facilitant l'accès grâce à un ascenseur.


De plus, une place de parking dédiée assure une commodité quotidienne précieuse dans cette région prisée.

 

La salle de bain équipée, la construction conforme aux normes RT 2012 et la sécurité de l'immeuble complètent les prestations de qualité.

 

Chaque coin de cet appartement neuf a été conçu avec soin pour offrir une expérience de vie exceptionnelle à Carqueiranne.

 

La disposition réfléchie des espaces et la terrasse ensoleillée créent un équilibre parfait entre intérieur et extérieur, capturant l'esprit méditerranéen.

 

Ne manquez pas l'occasion d'explorer cet appartement unique à Carqueiranne.

 

Contactez-moi dès maintenant pour organiser une visite et découvrez comment cet espace peut devenir votre havre de paix.

 

Profitez également de frais de notaire réduits de 2 à 2,5 %, une opportunité rare pour concrétiser votre projet immobilier en toute simplicité.

 

Surface habitable : 43m² Nombre chambres : 1 Nombre salles de bain/d'eau : 1 Ascenseur : Oui Extérieur : Oui
Contactez-nous
Les champs indiqués par un astérisque (*) sont obligatoires