Nouveau
Nouveau

Appartement Neuf de 3 Pièces avec Vue Exceptionnelle à Carqueiranne

530 000 €

Un appartement neuf de 3 pièces qui incarne l'essence même de la vie contemporaine à Carqueiranne.

 

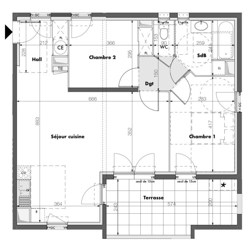
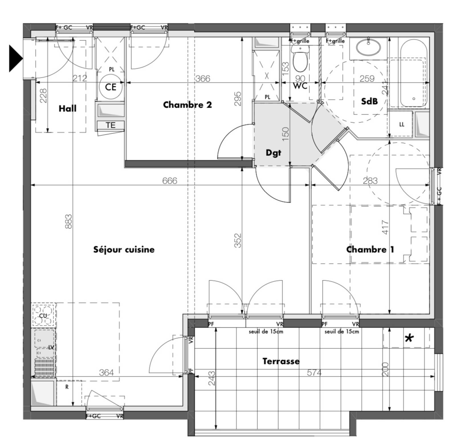
Situé au cœur de Carqueiranne, cet appartement de 69 m2 offre un espace bien pensé pour répondre à vos besoins et envies.
Le séjour-cuisine spacieux de 33 m2 est conçu pour accueillir des moments de convivialité, tandis que la terrasse de 13 m2 offre une vue sur la ville.

 

Les détails raffinés ne manquent pas dans cet appartement d'exception. Les deux chambres, de 10 et 11 m2 respectivement, sont des espaces chaleureux, l'une d'entre elles s'ouvrant gracieusement sur la terrasse.

Le grand dégagement et les placards intégrés ajoutent une fonctionnalité bien pensée à chaque coin de cette propriété.

 

Au-delà des caractéristiques spécifiques, cet appartement est un symbole de confort et de sophistication.

Situé en étage avec ascenseur, il offre non pas une, mais deux places de parking dédiées, une rareté dans le paysage urbain.

 

La construction conforme aux normes RT 2012 garantit une efficacité énergétique optimale, renforçant ainsi l'engagement envers des prestations de qualité.

 

Je vous invite à envisager une visite pour explorer de près les nuances subtiles de cette propriété exceptionnelle.

 

N'attendez pas pour planifier votre visite et saisissez l'opportunité de vivre l'expérience Carqueiranne dans ce magnifique appartement neuf.

 

De plus, bénéficiez de frais de notaire réduits de 2 à 2,5 % pour concrétiser plus facilement votre projet immobilier.

 

Contactez-moi dès aujourd'hui pour organiser votre visite guidée.

 

Surface habitable : 69m² Nombre chambres : 2 Nombre salles de bain/d'eau : 1 Étage : Oui Ascenseur : Oui Extérieur : Oui
Contactez-nous
Les champs indiqués par un astérisque (*) sont obligatoires