Coup de cœur
Coup de cœur

Appartement T2 neuf à vendre situé à TOULON

253 000 €

Découvrez votre futur chez-vous à Toulon, à quelques pas du cœur de ville ! Cet appartement T2 neuf en construction au 3ème étage avec ascenseur offre une expérience de vie urbaine exceptionnelle.


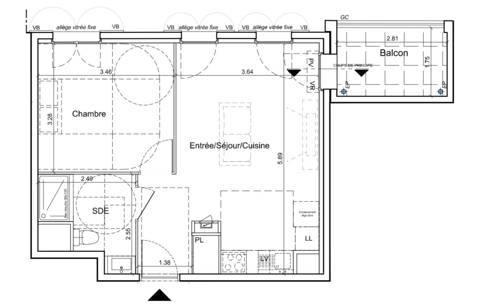
Avec une superficie totale de 39 m², cet espace moderne propose une parfaite combinaison de confort et de calme.


Le séjour cuisine spacieux de 23 m² constitue le cœur chaleureux de votre nouvelle demeure, idéal pour des moments de convivialité. La chambre de 11 m² offre un espace intime, tandis que la salle d'eau équipée garantit votre confort quotidien.


Profitez de la douce brise méditerranéenne sur la terrasse, un espace extérieur parfaitement pensé pour vos moments de détente.


Cet appartement, astucieusement agencé, répond aux normes de la réglementation thermique RT 2012, assurant une efficacité énergétique optimale. De plus, une place de parking est prévue pour vous offrir une solution pratique à vos besoins de stationnement.


Visitez dès maintenant votre futur havre de paix à Toulon !


Plongez dans l'harmonie de cet espace de vie contemporain, où chaque détail a été soigneusement pensé pour répondre à vos attentes.


Et pour rendre cette opportunité encore plus attrayante, les frais de notaire sont avantageusement fixés entre 2 et 2,5 %. Une chance unique de concrétiser votre rêve immobilier dans cette ville dynamique et en constante évolution.


N'attendez pas, saisissez cette occasion exceptionnelle et plongez dans l'expérience de vivre dans un appartement neuf, idéalement situé à Toulon.

Surface habitable : 39m² Nombre chambres : 1 Nombre salles de bain/d'eau : 1 Étage : 3 Ascenseur : Oui Extérieur : Oui
Contactez-nous
Les champs indiqués par un astérisque (*) sont obligatoires