Nouveau
Nouveau

Appartement T3 en construction à Toulon

263 000 €

Bienvenue dans une expérience résidentielle exceptionnelle à Toulon, où le moderne rencontre le confort dans un appartement T3 en construction neuve, conçu pour redéfinir votre style de vie.

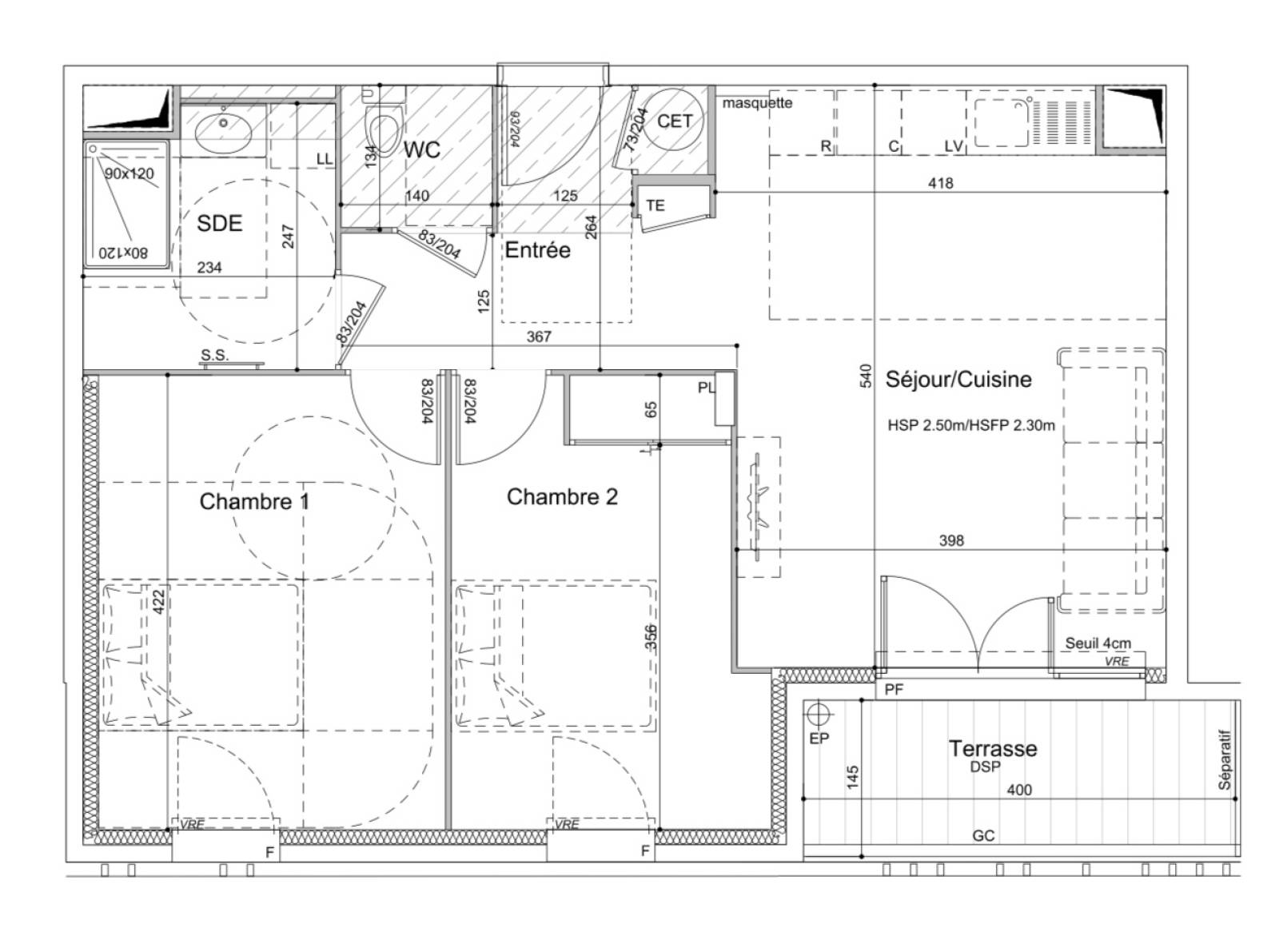
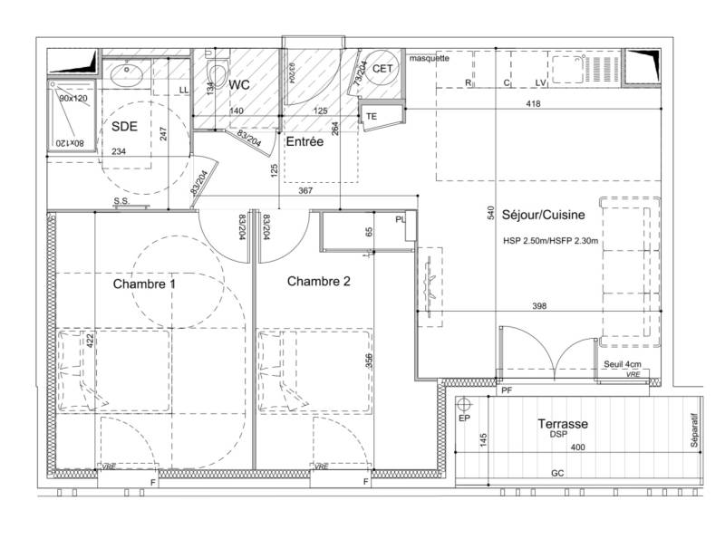
Avec une superficie généreuse de 60,72 m², cet espace contemporain allie élégance et fonctionnalité, offrant une opportunité unique d'investir dans votre bien-être.

 

Situé en étage avec ascenseur, cet appartement en construction récente répond aux normes énergétiques RT 2012, assurant une efficacité énergétique maximale. 


Profitez d'une conception réfléchie avec un séjour cuisine de 23 m², créant un lieu de rassemblement idéal pour les moments en famille ou entre amis.

 

Découvrez le confort ultime dans deux chambres bien agencées, une de 13 m² et une autre de 11 m², offrant des espaces intimes et relaxants.

 

Les deux chambres sont intelligemment disposées côte à côte, facilitant une organisation harmonieuse de votre espace personnel.

La salle d'eau entièrement équipée vous offre un sanctuaire moderne pour vous détendre et vous ressourcer.

 

L'appartement s'ouvre sur une terrasse couverte, créant une transition fluide entre l'intérieur et l'extérieur.
Profitez d'un espace extérieur privé qui donne sur le salon, idéal pour des moments de détente en plein air ou des dîners intimes sous le ciel étoilé.

Un WC séparé ajoute une touche pratique à cet aménagement pensé pour vous.

 

Cet investissement intelligent est également accompagné d'avantages financiers notables. Les frais de notaire, se situant entre 2% et 2,5%, facilitent votre transition vers la propriété.

 

De plus, le prix de l'appartement bénéficie d'une TVA réduite, vous offrant une opportunité rare d'acquérir une résidence de qualité à un coût avantageux.

 

Ne manquez pas cette chance de faire de cet appartement T3 votre nouveau chez-vous. Avec son design contemporain, ses avantages énergétiques et ses aspects financiers attractifs, c'est bien plus qu'une simple propriété.

 

Contactez-nous dès aujourd'hui pour explorer cette opportunité de vie exceptionnelle à Toulon.

Surface habitable : 60m² Nombre chambres : 2 Nombre salles de bain/d'eau : 1 Ascenseur : Oui Extérieur : Oui
Contactez-nous
Les champs indiqués par un astérisque (*) sont obligatoires