À saisir
À saisir

Découvrez l'Exclusivité à La Seyne-sur-Mer un Studio Neuf avec Vue Mer

180 000 €

Au cœur de La Seyne-sur-Mer, une perle méditerranéenne, une opportunité immobilière exceptionnelle s'offre à vous.

 

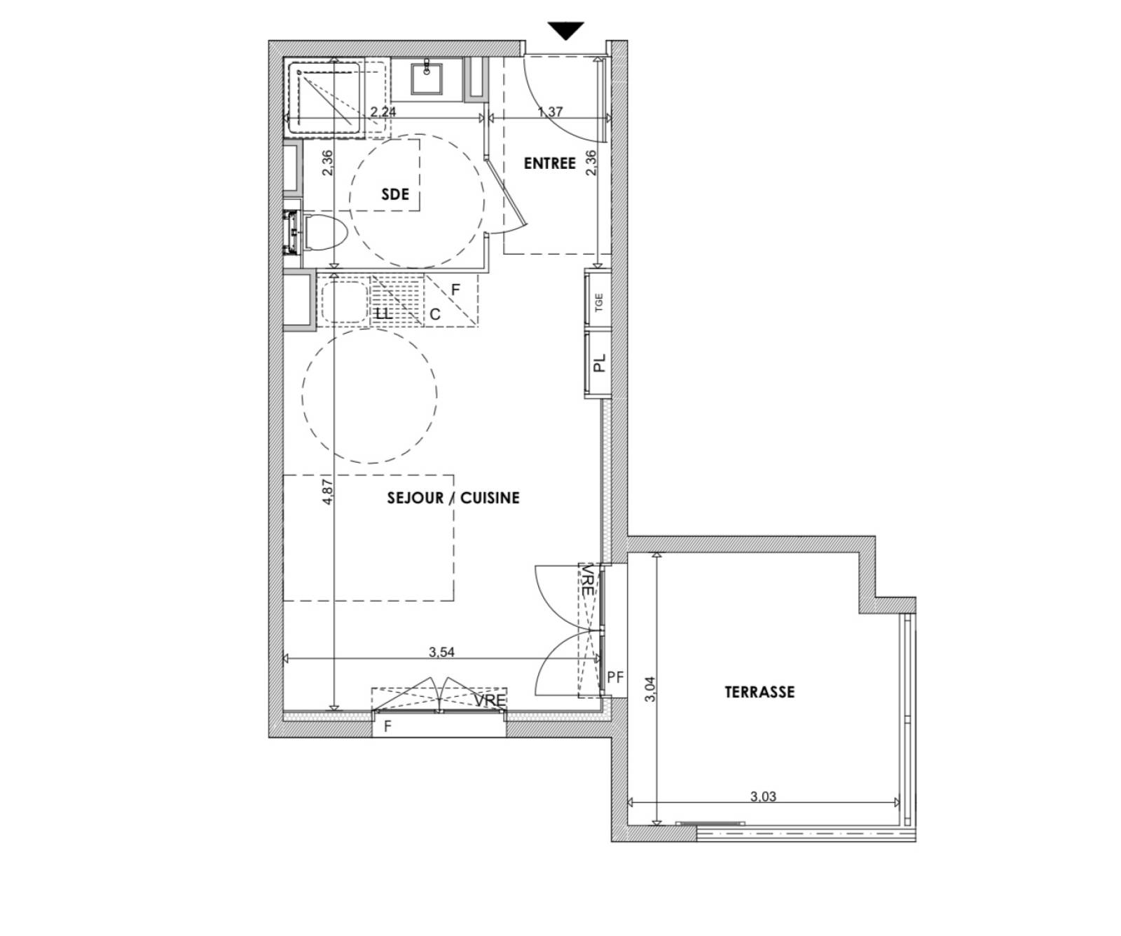
Bienvenue dans un studio neuf, de 25 m2, où le charme s'entremêle avec des caractéristiques haut de gamme, offrant une expérience de vie incomparable.

 

Cet élégant studio, situé au 3ème étage avec ascenseur, dévoile une superficie totale de 25 m2, baignée de lumière grâce à son exposition sud.
L'agencement intelligent comprend un séjour-cuisine de 17 m2, une salle d'eau équipée, et une terrasse privée de 9 m2 offrant une vue imprenable sur La Seyne-sur-Mer.

 

L'appartement, au sein d'un lotissement sécurisé, a été construit en conformité avec la réglementation thermique RT 2012, garantissant des prestations de qualité et une expérience résidentielle exceptionnelle.

 

Les caractéristiques et équipements de ce bien d'exception ne cessent de séduire.

Une place de parking exclusive, des placards intégrés, et l'emplacement privilégié au bord de la mer font de cet appartement un choix de vie idéal.

 

De plus, aucuns travaux ne sont à prévoir, offrant à ses futurs occupants une entrée sans encombre dans leur nouveau chez-soi.

 

Envisagez-vous de vivre dans ce cadre enchanteur où le confort, la modernité et la proximité avec la mer se conjuguent harmonieusement ?

Nous vous invitons à envisager une visite pour découvrir de près chaque détail de ce studio d'exception.

 

Sachez que nos frais de notaire sont réduits de 2 à 2,5%, une occasion à ne pas manquer pour concrétiser votre projet immobilier à La Seyne-sur-Mer.

 

Contactez-nous dès maintenant pour planifier votre visite et explorer ce studio qui incarne le meilleur de La Seyne-sur-Mer, une opportunité à saisir pour vivre ou investir dans une adresse d'exception.

 

Surface habitable : 25m² Nombre salles de bain/d'eau : 1 Étage : 3 Ascenseur : Oui Extérieur : Oui
Contactez-nous
Les champs indiqués par un astérisque (*) sont obligatoires