À saisir
À saisir

Découvrez un 2 pièces en Construction à Toulon

260 000 €

Bienvenue dans votre futur chez-vous, où l'harmonie entre design moderne et commodités urbaines prend vie.

 

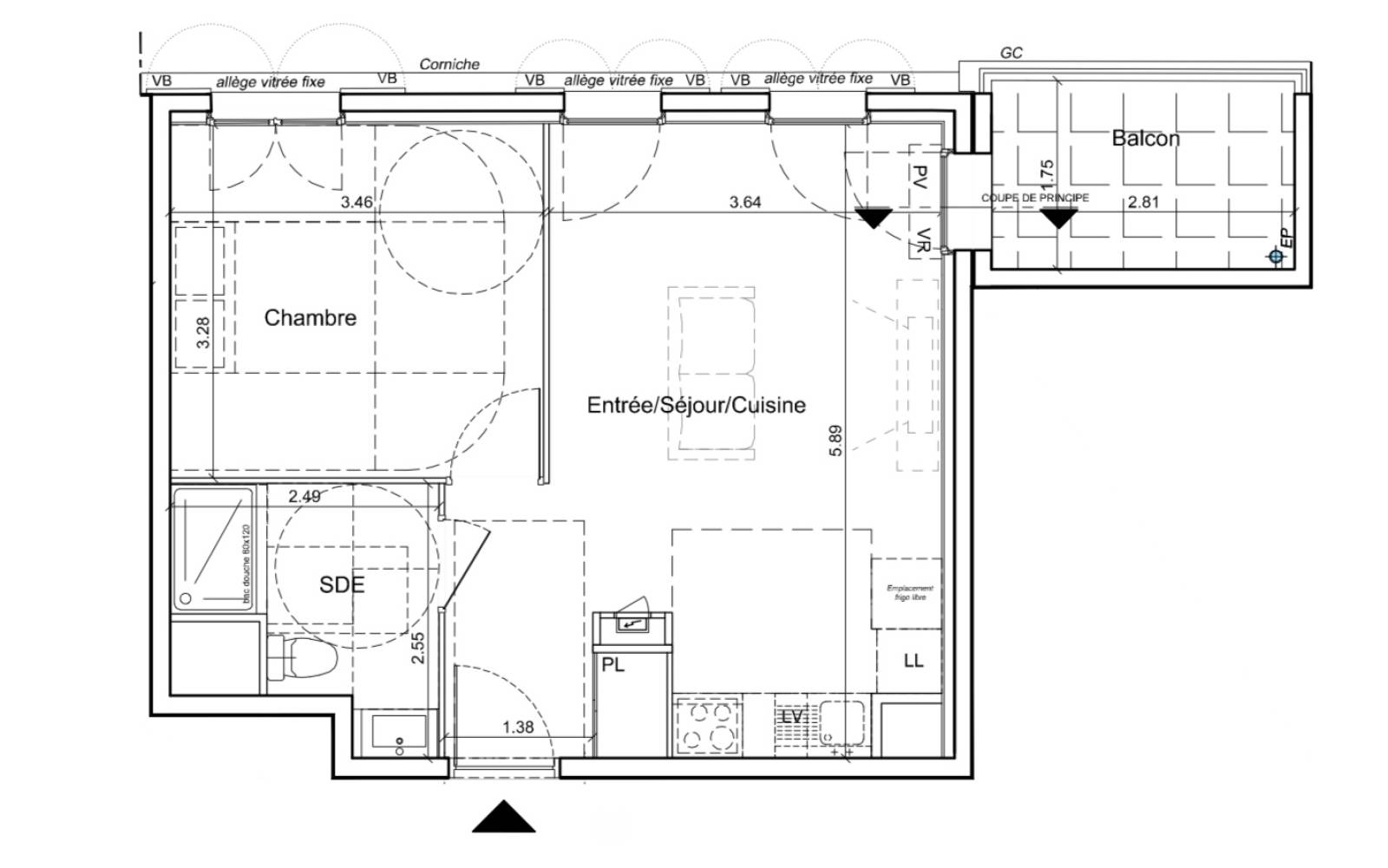
Perché au 5ème étage avec ascenseur, cet appartement T2 en construction à Toulon vous offre une expérience résidentielle unique, à quelques pas du centre-ville effervescent.

 

Avec une superficie totale de 39 m², chaque centimètre carré de cet espace a été soigneusement pensé pour vous offrir un lieu de vie où confort rime avec style.

Le séjour cuisine de 23 m² devient le centre de votre quotidien, offrant un espace polyvalent où se mêlent convivialité et fonctionnalité.

 

La chambre de 11 m² devient votre havre de paix, avec la promesse de nuits sereines et d'élégance. La salle de bain équipée incarne le mariage parfait entre utilité et esthétique, vous offrant un espace de détente et de bien-être.

 

La terrasse couverte est une extension naturelle de votre espace de vie, invitant à des moments de relaxation en plein air.

 

Trois ouvertures du séjour créent une connexion fluide entre l'intérieur et l'extérieur, baignant votre espace de vie de lumière naturelle.

 

L'appartement est une toile blanche, prête à accueillir votre style de vie unique. Une place de parking dédiée vous offre la commodité tant recherchée dans la vie citadine, éliminant les tracas liés au stationnement.

 

Investir dans le neuf, c'est investir dans l'avenir. Les frais de notaire de 2 à 2,5 % facilitent l'accès à cette opportunité exceptionnelle.

 

Personnalisez votre espace, créez des souvenirs durables et moderne à Toulon.

 

Contactez-nous pour découvrir en avant-première ce T2 en construction.

 

Surface habitable : 39m² Nombre chambres : 1 Nombre salles de bain/d'eau : 1 Étage : 5 Ascenseur : Oui Extérieur : Oui
Contactez-nous
Les champs indiqués par un astérisque (*) sont obligatoires