À saisir
À saisir

Découvrez Votre 2 pièces Neuf à Toulon

255 000 €

Bienvenue dans l'élégance moderne au cœur de Toulon, où la vie urbaine prend une nouvelle dimension ! En construction, ce T2 neuf au 2ème étage avec ascenseur dans une résidence idéalement située, à quelques pas du centre-ville.

 

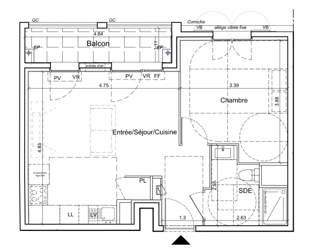
Cet espace contemporain de 40 m² incarne le mariage parfait entre design et fonctionnalité. Le séjour cuisine de 23 m² devient le point central de vos moments de convivialité, tandis que la chambre de 12 m² offre un havre de paix pour se retirer du monde.

La salle d'eau équipée ajoute une touche de luxe à votre quotidien, et le séjour s'ouvre sur une terrasse, fusionnant l'intérieur et l'extérieur dans une harmonie parfaite.

 

Pratique et bien pensé, cet appartement dispose également d'un placard à proximité de la cuisine, offrant un espace de rangement supplémentaire pour une vie organisée.

 

Chaque détail a été soigneusement considéré pour créer un environnement où le style de vie moderne rencontre le confort.

Construit selon les normes de la réglementation thermique RT 2012,  cet appartement assure une efficacité énergétique optimale, offrant ainsi une habitation durable et responsable.
Une place de parking exclusive est également prévue pour simplifier vos déplacements quotidiens.


Immergez-vous dans l'atmosphère de cet espace contemporain où le raffinement rencontre la simplicité.

Découvrez par vous-même pourquoi cet appartement est bien plus qu'un simple lieu de vie.

 

Pour rendre cette opportunité encore plus séduisante, les frais de notaire sont fixés entre 2 et 2,5 %.
Ne manquez pas l'occasion de posséder une pièce de ce paradis urbain en plein essor à Toulon.

 

 

Surface habitable : 40m² Nombre chambres : 1 Nombre salles de bain/d'eau : 1 Étage : 2 Ascenseur : Oui Extérieur : Oui
Contactez-nous
Les champs indiqués par un astérisque (*) sont obligatoires