À saisir
À saisir

Découvrez votre futur chez-vous de 2 pièces à Toulon !

251 000 €

Situé à quelques pas du centre-ville, ce T2 neuf en construction offre un style de vie contemporain et pratique.

 

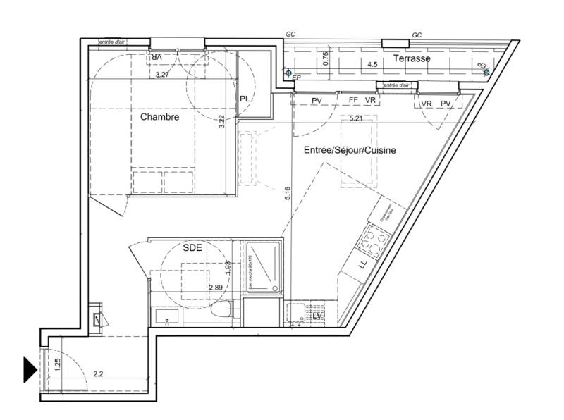
En premier étage avec ascenseur, l'appartement d'une superficie totale de 41m² vous accueille dans un espace harmonieux.

 

Le cœur de cette résidence moderne réside dans un spacieux séjour cuisine de 25 m², créant un lieu convivial pour vos moments de détente et de partage.


La chambre de 11 m² assure des nuits paisibles, complétée par une salle d’eau équipée pour un confort optimal.

 

Un avantage essentiel de cet appartement est la présence d'une place de parking, offrant la tranquillité d'esprit pour vos déplacements quotidiens.

De plus, la conception réfléchie inclut des espaces de rangement pratiques tels qu'un placard dans la chambre et à l'entrée, ajoutant une touche fonctionnelle à votre quotidien.

 

Profitez de moments en plein air sur la terrasse exposée Est, idéale pour savourer votre café du matin ou organiser des soirées entre amis.

 

L'orientation garantit une luminosité naturelle maximale tout au long de la journée.

 

Avec une construction neuf, cet appartement offre la possibilité de personnaliser votre espace selon vos préférences.

Les frais de notaire de 2 à 2,5 % facilitent votre démarche d'acquisition, faisant de cette opportunité une porte ouverte vers une nouvelle vie dans la magnifique ville de Toulon.

 

Ne manquez pas l'occasion de devenir propriétaire de ce T2 exceptionnel, alliant modernité, confort et proximité du centre-ville.

 

Contactez-nous dès aujourd'hui pour en savoir plus et commencez votre voyage vers la vie urbaine idéale à Toulon !

Surface habitable : 41m² Nombre chambres : 1 Nombre salles de bain/d'eau : 1 Étage : 1 Ascenseur : Oui Extérieur : Oui
Contactez-nous
Les champs indiqués par un astérisque (*) sont obligatoires