Coup de cœur
Coup de cœur

Explorez le Confort Urbain à Toulon 2 pièces

259 000 €

Entrez dans une nouvelle ère de sophistication avec ce T2 exceptionnel en construction, niché au 4ème étage avec ascenseur et idéalement situé à une courte distance du dynamique centre-ville de Toulon.
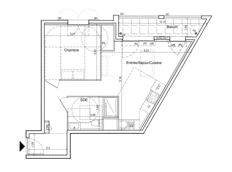
Avec une superficie totale de 42 m², cet appartement repousse les limites de l'élégance urbaine.

 

Le cœur de cet espace contemporain réside dans un vaste séjour cuisine de 25 m², créant une harmonie parfaite entre style moderne et fonctionnalité quotidienne. La chambre de 11 m² avec son placard intégré offre une oasis privée, alliant confort et praticité.

 

La salle d’eau équipée évoque une esthétique contemporaine, chaque élément étant soigneusement sélectionné pour créer un espace de bien-être raffiné. Sortez à l'extérieur et découvrez la magie de la terrasse.
Deux ouvertures stratégiquement positionnées fusionnent intérieur et extérieur, créant une symbiose entre votre espace de vie et le paysage urbain environnant.

 

L'appartement est orienté à l'Est, offrant des levers de soleil enchanteurs et une luminosité naturelle qui inonde chaque recoin de la résidence. Une expérience quotidienne qui transcende le simple fait d'avoir un chez-soi.

 

L'inclusion d'une place de parking ajoute une commodité indispensable à votre quotidien, éliminant les soucis liés au stationnement dans la vie urbaine animée.
Acheter dans le neuf offre également l'avantage d'une personnalisation selon vos préférences, donnant vie à votre vision du chez-vous idéal.

 

Les frais de notaire de 2 à 2,5 % facilitent votre parcours vers la propriété, rendant cette opportunité d'investissement d'autant plus attractive. Cette résidence en construction symbolise bien plus qu'un espace de vie, elle incarne l'avenir du confort urbain à Toulon.

 

N'hésitez pas à nous contacter dès aujourd'hui pour découvrir en avant-première cet espace novateur qui redéfinit les standards de l'habitat contemporain dans la charmante ville de Toulon.

Surface habitable : 42m² Nombre chambres : 1 Nombre salles de bain/d'eau : 1 Étage : 4 Ascenseur : Oui Extérieur : Oui
Contactez-nous
Les champs indiqués par un astérisque (*) sont obligatoires