Exclusivité
Exclusivité

Magnifique appartement T2 neuf en construction situé à Toulon

254 000 €

Découvrez dès maintenant ce magnifique appartement T2 neuf en construction à Toulon, à quelques pas du centre-ville.
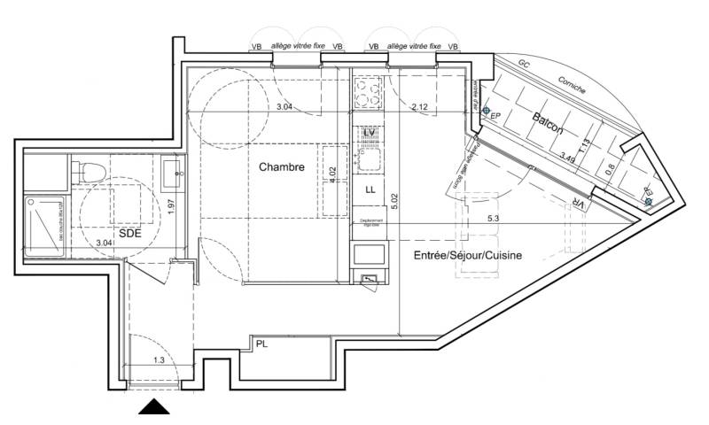
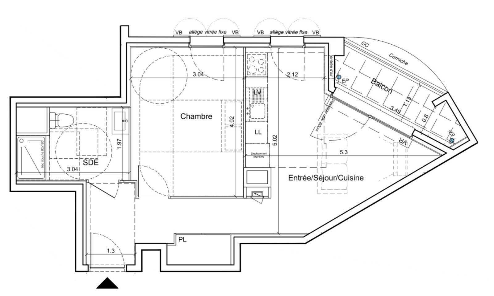
Niché au 3ème étage avec ascenseur, cette appartement immobilier offre une superficie totale de 40,55 m², pensé pour le confort absolu.

 

Imaginez-vous dans un lumineux séjour cuisine de 20 m², un espace convivial idéal pour partager des moments inoubliables. La chambre spacieuse de 12 m² vous accueille chaleureusement, tandis que la salle d'eau équipée ajoute une touche de modernité à votre quotidien.

 

Cet appartement est astucieusement agencé, avec un séjour ouvert sur une terrasse en longueur, offrant des vues captivantes. Un placard à l’entrée garantit un rangement pratique et organisé, répondant aux besoins de votre vie quotidienne.

 

Construit aux normes RT 2012,  cet espace de vie allie élégance et efficacité énergétique. Profitez de l'exposition EST pour baigner chaque pièce de lumière naturelle, créant une atmosphère accueillante tout au long de la journée.


Vous rêvez d'un lieu qui allie modernité et fonctionnalité ?

 

Cet appartement répond à toutes vos attentes. Les frais de notaire, seulement de 2 à 2,5 %, font de cette opportunité une offre à ne pas manquer.

 

Ne manquez pas l'occasion de visiter cet appartement d'exception. Planifiez dès maintenant votre visite pour découvrir cette appartement immobilier unique à Toulon.

 

Surface habitable : 40m² Nombre chambres : 1 Nombre salles de bain/d'eau : 1 Étage : 3 Ascenseur : Oui Extérieur : Oui
Contactez-nous
Les champs indiqués par un astérisque (*) sont obligatoires