Exclusivité À saisir
Exclusivité À saisir

Superbe T2 à Toulon Proche du Centre-Ville

258 000 €

Découvrez l'exclusivité de notre dernier projet immobilier, un T2 exceptionnel à Toulon, offrant un équilibre parfait entre sophistication urbaine et commodités modernes.

 

Dans le cœur dynamique de Toulon, à quelques pas du centre-ville, s'érige ce futur appartement architectural. Le quatrième étage de cette résidence exclusive abrite un appartement T2 aux caractéristiques remarquables, promettant un investissement judicieux.

 

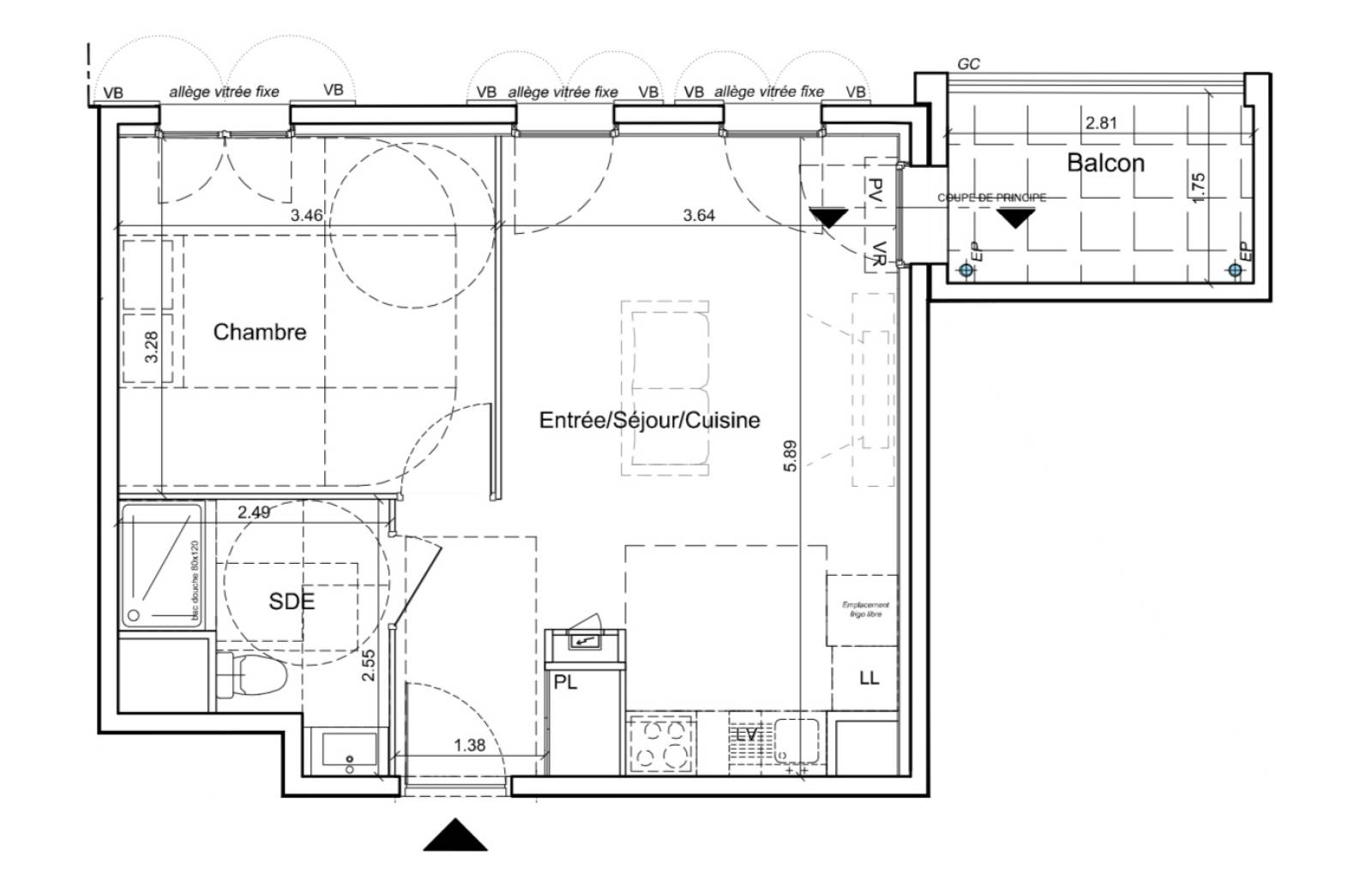
Avec une superficie totale de 39 m², cet espace de vie a été méticuleusement conçu pour optimiser chaque mètre carré.
Le séjour cuisine généreux de 23 m² crée un cadre idéal pour des moments de convivialité, tandis que la chambre de 11 m² offre un havre de tranquillité.

 

La salle d'eau entièrement équipée apporte une touche de luxe à cet appartement pensé pour votre confort au quotidien. L'agencement soigneux de chaque détail témoigne d'une conception haut de gamme, offrant une expérience de vie harmonieuse.

 

Profitez de la terrasse couverte, un espace extérieur qui devient une extension naturelle de votre intérieur. Que ce soit pour des moments de détente ou des réceptions en plein air, cette terrasse ajoute une dimension supplémentaire à votre qualité de vie.

 

Ce projet respecte les normes de construction les plus récentes, avec une certification RT 2012, garantissant une performance énergétique optimale.

 

Un choix judicieux pour les investisseurs avertis cherchant à conjuguer rentabilité et durabilité.

 

Ne ratez pas l'opportunité d'investir dans ce T2 d'exception. Contactez-nous dès maintenant pour obtenir plus d'informations et réserver votre place dans ce projet immobilier prometteur.

 

L'avenir de l'investissement immobilier vous attend à Toulon.

Surface habitable : 39m² Nombre chambres : 1 Nombre salles de bain/d'eau : 1 Étage : 4 Ascenseur : Oui Extérieur : Oui
Contactez-nous
Les champs indiqués par un astérisque (*) sont obligatoires