Coup de cœur
Coup de cœur

T3 Neuf à Toulon Proche du Centre-Ville

278 000 €

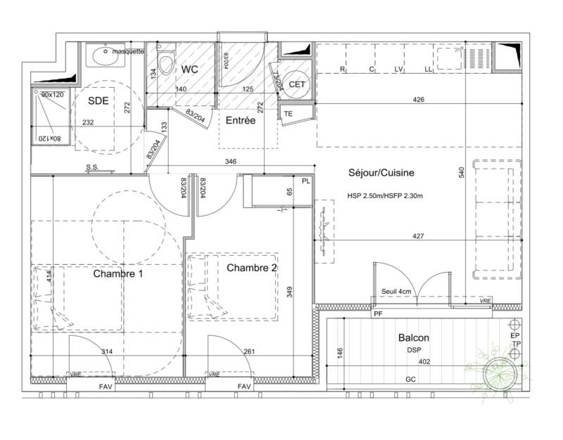
Un appartement T3 en construction, conjuguant élégance et fonctionnalité. Situé au 4ème étage avec ascenseur, ce logement de 59,77 m² offre une expérience de vie exceptionnelle.


L'espace de vie, baigné de lumière naturelle, se compose d'un séjour cuisine de 23,50 m², créant un lieu idéal pour les moments de convivialité.
Les deux chambres, respectivement de 13 m² et 10 m², offrent des espaces intimes, parfaits pour le repos.

La salle d'eau, équipée avec soin, complète l'aspect pratique de cet appartement.

 

Une caractéristique remarquable est la terrasse offrant un espace extérieur privilégié. Imaginez-vous profiter de vos soirées en plein air, admirant le panorama urbain.

 

Ce bâtiment est en cours de construction selon les normes RT 2012, garantissant une efficacité énergétique optimale.
Cela se traduit par des économies significatives sur les frais d'énergie, une décision avisée pour un avenir plus durable.

 

Un autre avantage financier est la TVA réduite sur le prix de l'appartement, une opportunité rare à ne pas manquer. De plus, les frais de notaire, entre 2 et 2,5%, facilitent le processus d'acquisition.

 

Ne manquez pas l'occasion d'investir dans ce bien immobilier exceptionnel, où le confort moderne rencontre la proximité du centre-ville.

 

Offrez-vous une vie urbaine dynamique sans sacrifier le bien-être. Prenez rendez-vous pour visiter votre futur chez-vous dès aujourd'hui !

Surface habitable : 59m² Nombre chambres : 2 Nombre salles de bain/d'eau : 1 Étage : 4 Ascenseur : Oui Extérieur : Oui
Contactez-nous
Les champs indiqués par un astérisque (*) sont obligatoires