Coup de cœur À saisir
Coup de cœur À saisir

T4 Neuf en construction à Carqueiranne une opportunité Immobilière

680 000 €

À quelques pas du centre-ville de Carqueiranne, découvrez une résidence d'exception où le bien-être se conjuguent dans un T4 neuf, offrant une expérience de vie incomparable.

 

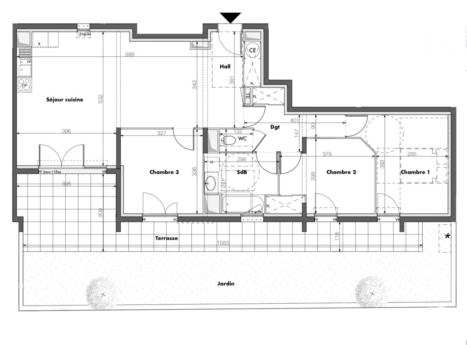
Situé en rez-de-chaussée, cette appartement immobilier de 87 m² incarne le summum du confort et du style, promettant une vie sereine dans le cadre enchanteur de Carqueiranne.

 

Dès l'entrée, le charme opère avec un hall d'entrée accueillant agrémenté d'un placard intégré, offrant une première impression de raffinement.

 

Le séjour-cuisine, vaste et lumineux avec ses 35 m², devient le point focal de la convivialité, un espace où se retrouver en famille ou entre amis pour des moments précieux.

 

Trois chambres bien agencées, respectivement de 12, 11 et 10 m², offrent des havres de paix privés, chacune s'ouvrant gracieusement sur la terrasse de 26 m².

 

Chaque détail a été pensé pour créer une atmosphère chaleureuse et fonctionnelle.
Un dégagement de 6 m² apporte une fluidité naturelle à l'espace, soulignant la conception soignée de cette propriété.

 

L'extérieur devient une extension naturelle de votre espace de vie, avec une terrasse spacieuse de 26 m² et un jardin privé de 36 m².

 

L'exposition sud ajoute une touche ensoleillée à votre quotidien, tandis que chaque chambre bénéficie de l'accès direct à la terrasse, créant une harmonie parfaite entre intérieur et extérieur.

 

La salle de bain entièrement équipée et le WC séparé ajoutent une note de sophistication à cet espace, créant un environnement confortable au quotidien.

 

En tant que propriété neuve en construction, cet appartement offre non seulement un confort moderne, mais également la possibilité de personnaliser certains détails selon vos préférences.

 

Les frais de notaire, de 2 à 2,5 %, constituent une opportunité rare pour concrétiser votre projet immobilier avec une valeur ajoutée significative.

 

Contactez-nous dès aujourd'hui pour organiser une visite et découvrez comment ce T4 exceptionnel peut devenir votre sanctuaire personnel à Carqueiranne.

Surface habitable : 87m² Nombre chambres : 3 Nombre salles de bain/d'eau : 1 Ascenseur : Oui Extérieur : Oui
Contactez-nous
Les champs indiqués par un astérisque (*) sont obligatoires