À saisir
À saisir

Votre appartement moderne à Toulon T2 Neuf

256 000 €

Explorez le charme d'une nouvelle résidence à Toulon, où le style de vie urbain rencontre le confort contemporain.
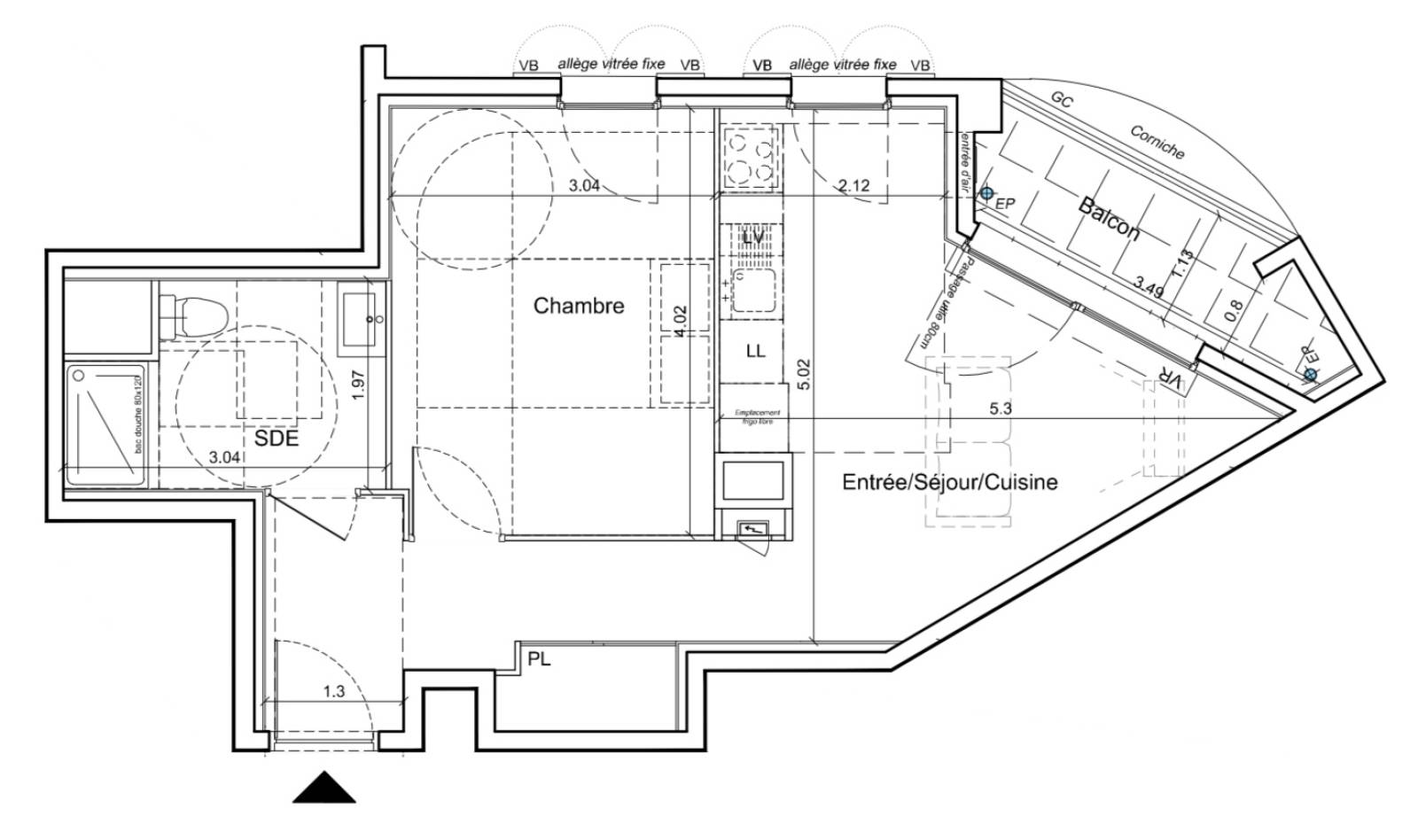
Perché au 4ème étage avec ascenseur, cet appartement T2 en construction incarne l'essence de la vie moderne, à quelques pas du centre-ville animé.

 

Avec une superficie totale de 40 m², chaque mètre carré de cet espace a été optimisé pour offrir une expérience de vie harmonieuse. L'exposition EST baigne votre intérieur de lumière naturelle, créant une atmosphère chaleureuse et accueillante dès que vous franchissez la porte.

 

Le cœur de cet appartement réside dans un vaste séjour cuisine de 23 m², un espace polyvalent où la convivialité s'entrelace avec la fonctionnalité.

La chambre de 13 m² offre un sanctuaire de tranquillité, tandis que la salle d'eau équipée présente un design moderne et fonctionnel.

 

La terrasse devient une extension naturelle de votre espace de vie, offrant un lieu idéal pour des moments de détente en plein air.

 

La cuisine en longueur ajoute une touche de sophistication à votre quotidien, tandis qu'une grande baie vitrée inonde l'espace de lumière et offre une vue sur les environs.

 

Investir dans cet appartement, c'est investir dans le futur. Une place de parking dédiée vous offre la tranquillité d'esprit pour vos déplacements quotidiens dans le centre-ville dynamique.

 

Les frais de notaire de 2 à 2,5 % facilitent l'accès à cette opportunité exceptionnelle.

 

Découvrez le mariage parfait entre l'élégance moderne et la vie citadine effervescente.
Votre style de vie idéal vous attend dans cet espace moderne et lumineux.

Surface habitable : 40m² Nombre chambres : 2 Nombre salles de bain/d'eau : 1 Étage : 4 Ascenseur : Oui Extérieur : Oui
Contactez-nous
Les champs indiqués par un astérisque (*) sont obligatoires